Ihre alten Pläne neu digitalisiert!

Wandeln Sie alte Scans, Fotos oder Handskizzen in professionelle, digitale Pläne um.
Perfekt für Baugesuche, Umbauten und mehr.

Das Problem vieler Handwerker und Architekten

Alte Pläne sind oft verzogen, unlesbar oder nur als Skizze vorhanden

Handskizzen und veraltete Pläne enthalten selten genaue Masse und Details, was die Planung und Umsetzung erschwert.

Fehlende Digitalisierung führt zu zeitaufwendigen Anpassungen und Fehlern in der Ausführung.

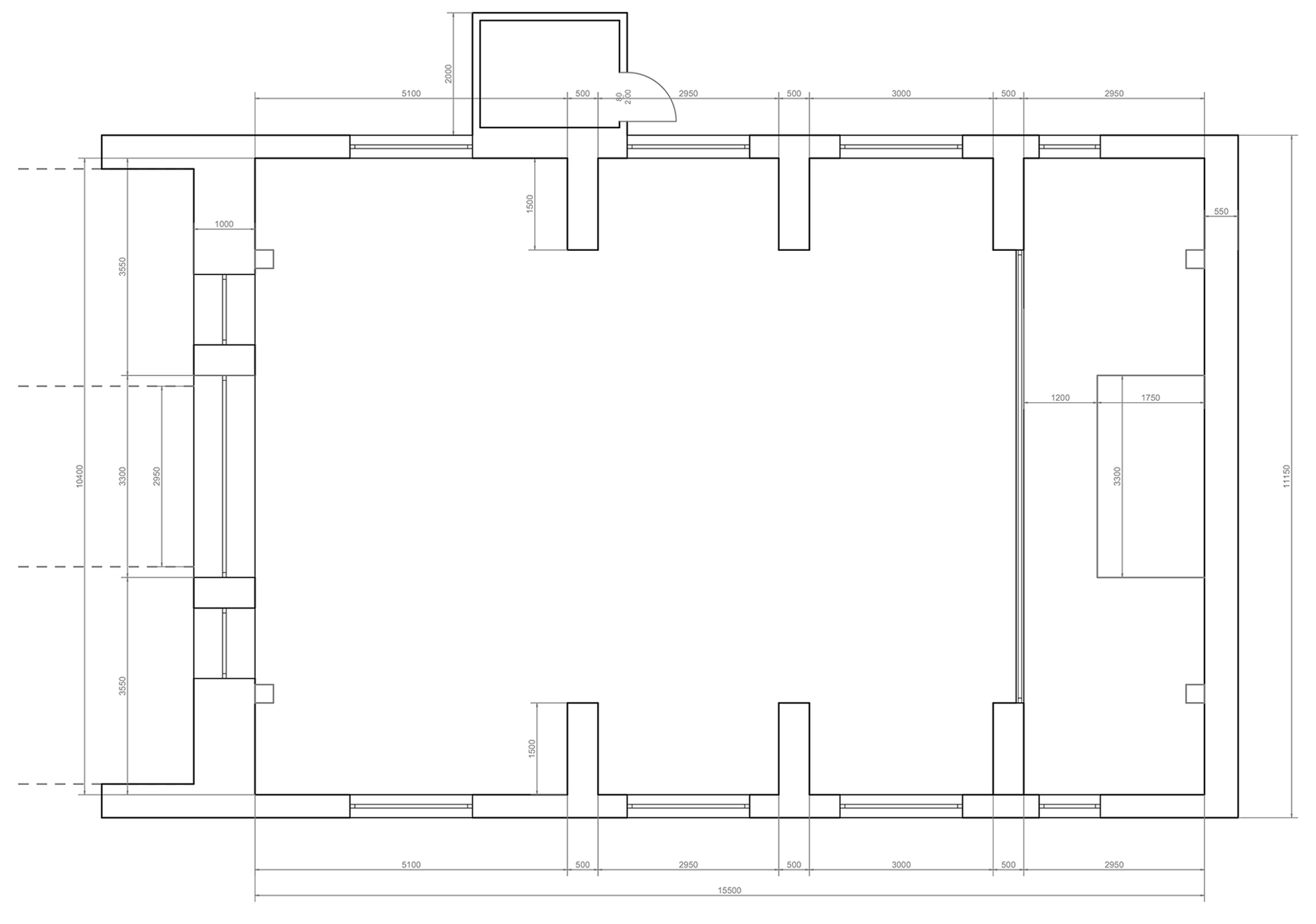
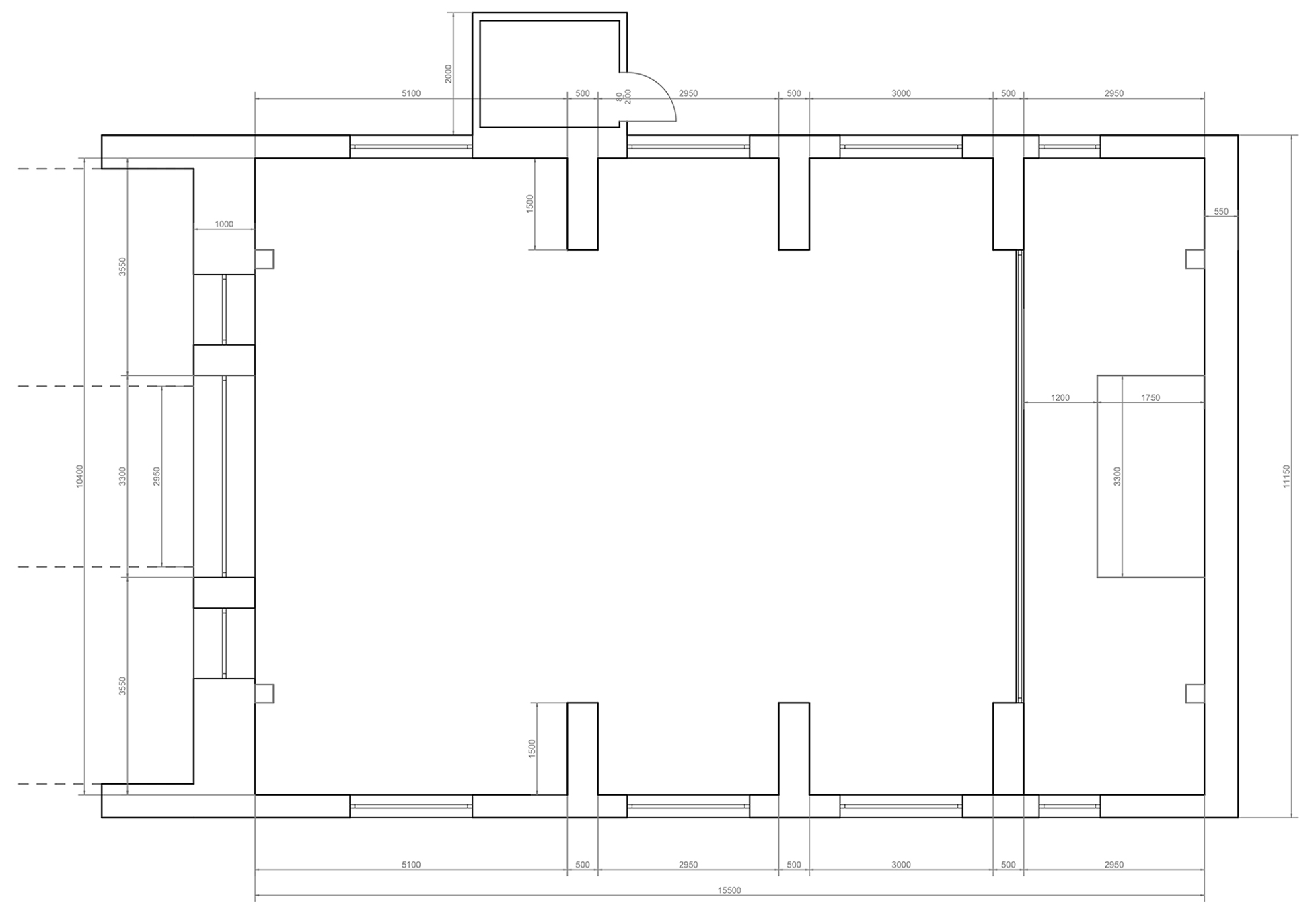
Digitale Pläne sorgen für eine verlässliche Grundlage

Massgenaue und detaillierte Pläne reduzieren Fehler und beschleunigen Arbeitsprozesse.

Einfache Integration in CAD-Systeme und Anpassbarkeit steigert die Effizienz bei Planung und Umsetzung.

Unsere Lösung für Sie

Laden Sie Ihre Pläne hoch – wir übernehmen die Digitalisierung.

Erhalten Sie einfache, professionelle DWG-Pläne innerhalb weniger Tage.

Zeit- und kostensparend.

Ideal für Baugesuche, Heizungsplanung und mehr.

Kundenstimmen

Wir sind ein Team aus erfahrenen Fachleuten

Unser Team besteht aus hochqualifizierten Experten mit langjähriger Erfahrung in der Gebäudeplanung.

Oliver Stalder

Telefon 062 530 10 38
Mobile 079 663 82 95

ostalder@plan-fabrik.ch

Patrick Stalder

Telefon 062 530 10 38
Mobile 076 420 19 46

pstalder@plan-fabrik.ch

Häufig gestellte Fragen

Hier finden Sie Antworten auf die wichtigsten Fragen.

Sie können uns Scans, Fotos oder digitale Dateien in den gängigen Formaten wie PDF, JPG oder PNG senden. Auch Handskizzen auf Papier sind möglich.

In der Regel benötigen wir 2–5 Werktage, abhängig von der Komplexität und Grösse Ihres Projekts. Wir informieren Sie vorab über die voraussichtliche Bearbeitungszeit.

Je besser die Qualität Ihrer Vorlage, desto genauer können wir arbeiten. Verzogene, unscharfe oder unvollständige Pläne können dennoch verarbeitet werden, aber zusätzliche Korrekturen könnten erforderlich sein.

Wir digitalisieren Architektur- und Baupläne, sowie einfache Handskizzen. Fragen Sie bei speziellen Anforderungen einfach nach!

Die fertigen Pläne senden wir Ihnen im CAD (DGW/DXF) oder PDF-Format per E-Mail zu. Auf Wunsch können auch andere Dateiformate bereitgestellt werden.